购置房产是人生中的大事,买房过程中较消耗时间和精力的便是选定房源这一环节。人们往往千挑万选,希望挑中一个“好房子”,那么什么才是真正的“好房子”?好房子的标准又有哪些呢?
1、交通

上班的时间成本账:开车或乘公交车的上班族,若平均一天有两个小时花在交通上,一年就有约一个月的时间待在车里。如果把这每天花掉的两个小时集中起来,连续不断地坐一个月车,或不眠不休地开一个月车,就能体会其时间数量的可观了。反之,如果把这些时间花在工作上或其他方面,则能创造更多的效益。
2、绿化

居住环境有一个重要的硬性指标就是绿地率,指的是居住区用地范围内各类绿地的总和占居住区总用地的百分比。 值得注意的是:“绿地率”与“绿化覆盖率”是两个不同的概念,绿地不包括阳台和屋顶绿化,有些开发商会故意混淆这两个概念。由于居住区绿地在遮阳、防风防尘、杀菌消毒等方面起着重要作用,所以有关规范规定:新建居住区绿地率不应低于30%。郊居住区绿地率应在35%以上,在市区附近,如果住区绿地率能达到40%甚至50%,就比较难得了。
3、社区设计

一个社区的人性化设计可以体现在多个方面,例如人车分流,保证交通的便捷性、安全性、以及减少对居住环境的影响;商住分区,娱乐购物影响不到居住的安静和安全;住宅布局成街区式,利于形成良好的邻里关系;社区内规划有大型巴士站、人工湖、学校等,生活配套相当完善。
4、社区配套

一个社区的配套是整个置业生活中必不可少的组成部分,有的引进了大型超市,有的配套学校特别好,会所更是功能齐全,吃喝玩乐无所不包,业主大可以足不出小区门就能满足所有生活和休闲娱乐所需。
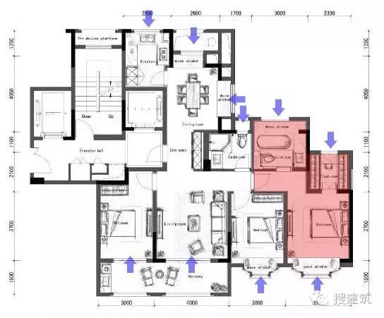
5、户型合适
一、户型方正 南北通透
*为什么说好户型是南北通透呢,南北通透的户型有什么优点:
· 采光效果好,即使是阴天屋内也不会过于暗。
· 通风效果好,空气形成对流快,有利于促进室内空气循环,保持干燥。
· 冬暖夏凉,南面的房间更能吸收到阳光,朝北的房间清凉一些,自然冷热的交叉循环。
· 私密性强,居室能够散布在南北两头,房间与房间之间互不交叉搅扰。
· 视界多样,南北通透的房子能够看到不同朝向的景色,视界广阔。

全屋南北通透,十大采光面,连套房式主卧做到了让人惊讶的南北通透全明
*方正的房子整体利用率高,拐角多会白白浪费不少空间,看起来面积好像很大,住起来却觉得地方不够用,所以方正的房子是最理想的,可以让使用面积最大化。

整体户型方正,三开间均朝南,保证了采光和通透性,中规中矩,属于经典户型。
二、大面宽 短进深
所谓面宽,指的是房屋东西墙面之间的宽度尺寸,而进深则是指与面宽垂直方向的深度尺寸。大面宽短进深是比较适当的空间设计,这样的设计可以加大屋内的采光,舒适度更强。
四开间朝南户型,南向更多阳光
三、功能分区合理、布局合理
功能分区合理、动静分区
动区是活动较为频繁的区域,应靠近入户门设计,如客厅、厨房、餐厅等;
静区主要供居住者休息,相对比较安静,应该布置在户型内侧,如卧室、书房等。两者应该分离,减少相互之间的干扰。布局合理:厨房与餐厅的距离要近,方便厨房操作人与用餐人的交流;卧室与卫生间的距离要近,方便晚上使用洗手间等等。

到底什么样的平面布局才是好的?
这里我们总结了几种方法:
1、满足功能 舒适为先 形式服从功能
其实在房价日益高涨的今天很多刚需房的甲方都会追求空间的多功能化。比如空间的交替利用等等(如:书房同时可以作临时卧室、连体的吧台餐桌)

2、动线和平直度
良好动线设定带来的是舒适便捷的使用体验,也是一套平面方案看着顺不顺眼的因素之一而平直的完成面可以帮助到最佳动线的设定。

3、 是否有分区思维
这一点尤其体现在鉴别大户型或工装布局上。一个几平米的卫生间尚且讲究干湿分离上百平甚至上千平米的房子没有分区思维是多么的可怕。

无分区思维的布局

分区思维的体现
3. 面积分配比例
这点很好理解,每个空间都有它自己常规的尺寸,这不仅仅是遵从于人体工程学,也是划分各个功能区域的依据。试想一下假如厨房比客厅大、衣帽间比卧室大、酒店大堂面积小于电梯厅,布局上看起来会不会很不舒服。

5、通风采光
外部环境也是非常重要的,不然就不会出现这么多业主热衷于江景房海景房。等我们在做设计的时候要合理地运用现场的采光条件,通过光线的明暗对比塑造更好的空间。良好的通风条件是保证舒适度的标准,通风不良的房子只能充满臭烘烘的鞋味亦或是满屋子的厨房味儿。

6、 空间感的体现
比如平面布局上的家具位置会影响到二级吊顶的范围和同样吊顶的位置也会影响立面等等。当位置衔接不上或者前后不着掉的时候空间就散了,丧失了“形”从而空间设计就变成了装饰设计变成了只是四面墙做装饰或涂料等。
7、平面造型处理
最直接有效的解决方法就是做出不一样的平面造型,虽然会产生死角、尽管预算很骨感,但不同的造型处理会带来强烈的视觉冲击和现场感官(动线、方位、围合等感官)

8、 是否体现情怀
情怀不一定要很伟大,可以是小到一个凸显氛围的落地灯,可以是一把凭海临风 、海边听涛的躺椅或凸显人性关怀、积极向上的细节设计也可以一定程度体现主人的性格。