时光在静默中前行,四季于光影中更迭,
润泽·中心之城
步履不停,日夜兼程将一砖一瓦精心雕琢,一草一木悉心规制,
携着一抹暖阳,夹带着一缕芬芳,
缓缓的轻抚过新家的每一寸肌理,弹奏出一曲岁月静好,
建筑工人们匠心如初,工程如火如荼进行着
美好时刻,呈上一份最新的工程进度,
让您提前知道,您和家的距离。


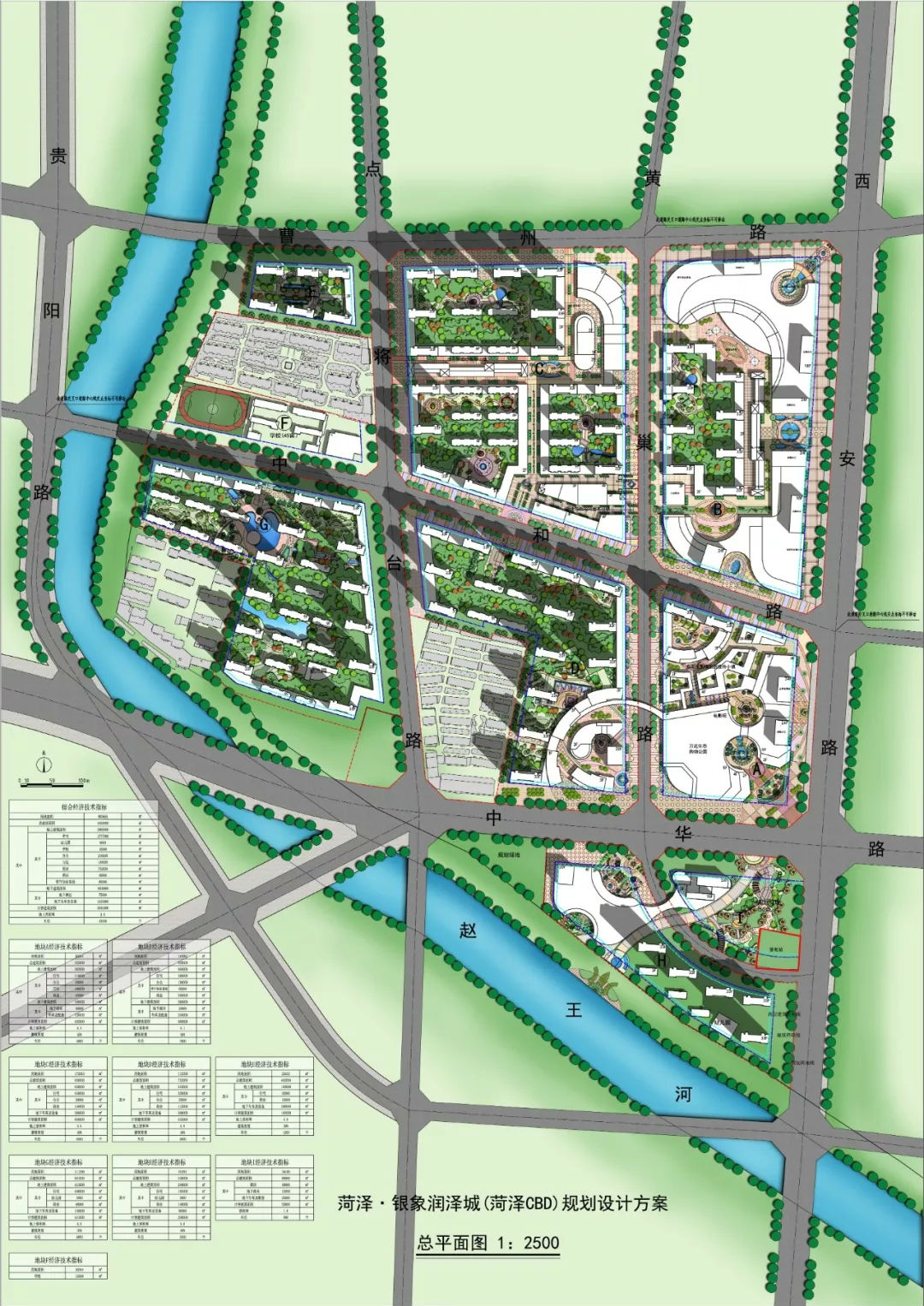
最新工程播报
所有关于幸福的憧憬
都在这里慢慢酝酿
随着工程进度的稳步推进
项目日新月异
已取得了可喜的进展

1# 施工至17层

2# 施工至24层

3# 施工至24层

4# 施工至28层

5# 施工至19层

6# 施工至22层

7# 主体结构封顶

8# 主体结构封顶

9# 施工至19层

10# 施工至22层

12# 主体结构封顶

13# 施工至13层

14# 施工至4层

15# 主体结构封顶

16# 施工至4层

17# 施工至8层

18# 车库基础钢筋绑扎

19# 施工至7层

25# 施工至4层

27# 负二层施工

一步一脚印付出
专注每一个细节、每一道工序
都是独运匠心的精雕细琢
润泽·中心之城
每一次的工程进度播报,
都是将未来美好的生活拉近一步,
我们始终为呈现美好而努力,
让您在等候幸福生活的日子里更加安心,
不辜负每一份热情的期待和对家的殷切盼望。
户型鉴赏

